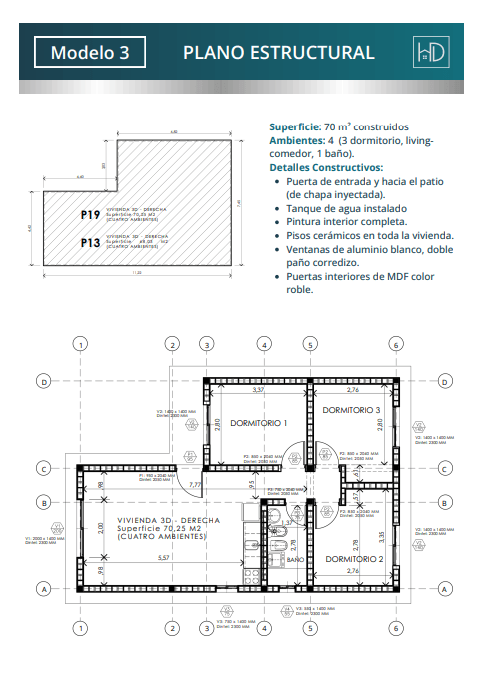
MODELO 3
CASA DE 70 METROS CUADRADOS
Contactanos para obtener más información sobre disponibilidad, financiación y todo lo que necesites saber.